新白茶像绿茶,老白茶像红茶,按这么说,白茶到底属于什么茶类?
2024-02-02 03:52:53
花语天境得房率 杭州花语天境府售楼处电话
| PART1 |

△城东新城规划图
城东新城是杭州最早开通地铁的板块之一,又位于杭州城市向东战略的节点位置,城东新城吸引着大量看好杭州的房企在此拿地。
若按目前杭州在售楼盘数来给板块排序,城东新城一定名列前茅,多盘绞杀,城东新城近几年一直都是杭州改善客户的争抢者。
首开东城金茂府,即将加推3#、4#两幢,147-165方约76套房源。除此次即将加推房源外,还有3幢约185套房源。
龙湖葛洲坝景粼天著,新一期登记刚落下帷幕,还剩下约180套房源等待后期加推,户型从124方起步。
世茂钱塘天誉,高层房源均已推出,所剩不多。而剩下的洋房、叠墅等业态大约还有244套房源。
信达东莱府,目前仅开盘一期,新一轮仅89方,约124套房源的加推正在路上。
滨江龙湖东潮府,目前也仅开盘一期,即将加推约64套三幢房源,从97方起步。
多盘厮杀的城东新城又将迎来三新盘,悦风华、中旅归锦府和花语天境。从板块内现有楼盘的地段及配套来看,花语天境优势最大。
| PART2 |

中国铁建&浙江交投以总价186740万元,楼面价30121元/方,溢价率25.5%竞得杭政储出[2018]60号(彭埠单元R21/S2-15地块)宅地。
地块容积率1.8,是目前板块内容积率最低的地块,另需配建不少于6199.56方的公共租赁住房。

从位置看,项目最大的优势就是离1、4号地铁彭埠站现有地铁口大约步行3分钟范围,后期小区南侧还会新增两个地铁口。
而周边的商业聚集,港龙城(招商中)、三花国际都分别一路之隔,城东西子国际、东站万象汇在直线距离1km的范围内。
夏衍小学在项目直线距离约400m位置,夏衍中学在直线距离约1km位置,还有一所去年刚投入使用的九年一贯制学校,浙师大附属杭州笕文实验学校在直线距离约1.5km位置。
在建的江干区人民医院及区公共卫生中心位于项目东侧直线约500m,是一家三甲级医院,预计20年底投入使用。
| PART3 |

△项目鸟瞰效果图
项目采用“高低配”的设计,由7幢13-16层高层和6幢叠墅组成,其中高层分布在北侧和西侧,叠墅则分布在东南侧,靠近河道。
每幢高层一楼都设置约4.2m的架空层,用于设置儿童游乐区、健身房、阅读室等。
公租房设置在西南角7号楼,与住宅之间没有阻隔,考验后续物业管理能力。
高层外立面采用的是高级灰石材干挂搭配大玻璃幕墙,简约现代。

△项目沙盘图
人行出入口除了北面没有设置外,其余三面皆有设置。车行主出入口设置在东西两面,另外西面还会有一个来访车位出入口。这样的出入口设计可以说相当方便了。

△项目沙盘图
南侧是约4200方的私家花园,目前为临时售楼部和停车场,后期会拆除用以建设花园。
另外,后期项目南侧零距离会增加两个地铁口,其中在西南角会开一个人行小门,方便业主快速步行到达地铁口。

△项目沙盘图
首开的是北侧1、2号楼,户型面积段111-149方,园区最大的水系景观设置在1、2号楼的南侧,景观感受较好。
此次首开的两幢是项目仅有的包含小户型的楼幢,后期高层均是130-149方。
△项目售楼部实景图
售楼部大门设置在项目东侧莲花桥路上,通过一段蜿蜒的连廊后,可以看到线条简约的售楼部。

△莲花桥路实景图
莲花桥路目前往北由围挡堵住,后期将通往白石会展中心(规划)。

△万科中央公园实景图
再往东,隔河相望的是万科中央公园,18年交付,二手房挂牌均价在5.6万/㎡左右,成交均价5万/㎡不到。

△鸿泰路实景图
项目南侧是鸿泰路,一路之隔是港龙城,据说已由王府井接手,据置业顾问称,预计22年开业。

△实景图
项目西侧是三花国际,两者之间有一条小路隔开。
三花国际涵盖了餐饮、购物、休闲等,未来花语天境业主可以通过西侧出入口到三花国际逛一圈,很是方便。

△明月桥路实景图
三花国际西侧是明月桥路,道路宽敞,是城东重要的干道之一。
杭州之翼与三花国际隔路相立,去年底已迎来交付。

△源聚桥路实景图
项目北侧源聚路,可以看到,项目首开的两幢高层已建造了12层左右。

△实景图
再往北,是规划的白石港公园,目前由围墙挡住。不远处,可以看到东莱府和景粼天著。
从整体看,花语天境两侧靠商业,两侧环景观,所处位置在板块内算相当优越。

△主要装修明细公示图
样板间开放了149方户型,地暖、新风、中央空调齐全。
全屋墙纸,客餐厅地面大理石,三件套西门子,水槽摩恩,高仪卫生间龙头,洗脸盆、马桶为伊奈,主卫浴缸卡德维。整体装修配置尚可。
| PART4 |

A1户型约111方三房两厅两卫西边套→
|优点|
①餐客厅一体带飘窗,舒适性好
②U型厨房,操作方便
③主卧带独立卫生间、衣帽间,私密性好
④全明户型
|缺点|
①厨房采光方向是设备平台,采光一般
②阳台面宽较小

A2户型约118方三房两厅两卫东边套→
|优点|
①三卧室朝南,采光面多
②餐客厅一体带飘窗,舒适性好
③U型厨房,操作方便
④主卧带独立卫生间、衣帽间,私密性好
|缺点|
①三房功能性一般
②阳台面宽较窄

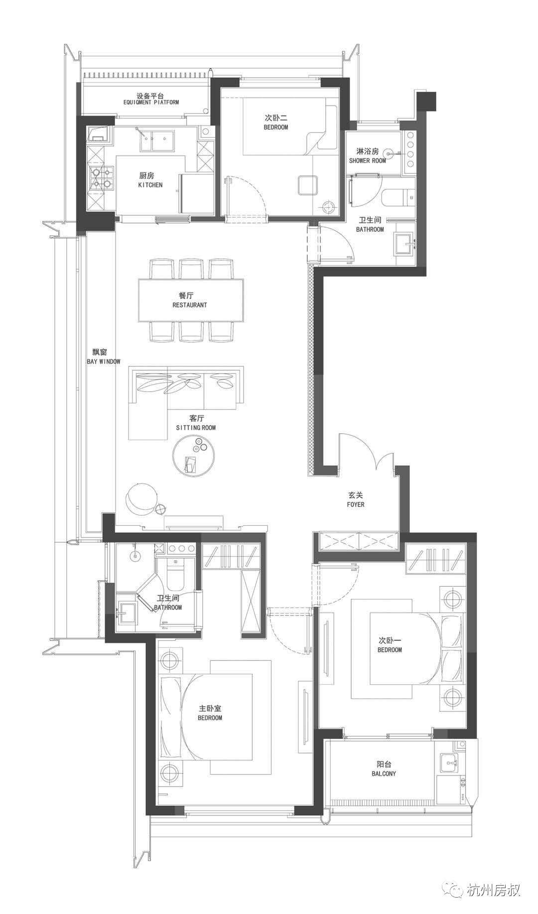
C1户型约149方四房两厅两卫中间套→
|优点|
①餐客厅一体,横厅布置,空间开阔
②公卫干湿分离,实用性好
③U型厨房,操作方便
④主卧带独立卫生间、衣帽间,私密性好
⑤阳台面宽较宽
|缺点|
①入户玄关局促
②主卫暗卫
| PART5 |
△项目效果图
目前的城东新城因为横亘的杭甬高速而处于尴尬局面,它将城东严重分割,影响了城市内部的沟通交流。
而如今杭甬高速抬升的落地,使得城东重获新生。
城东新城的最大症结依旧是板块内的供应量较大,且相较于艮北性价比稍低,造成城东新城长期去化难。
但不可忽视的是,城东新城因为整体板块定位较高,在售楼盘定位皆偏高端改善,产品品质还是可圈可点的,在全城整体限价向上突破的同时,城东新城优势开始回流。
花语天境占据城东新城板块内的绝佳位置,地铁零距离,商业配套环绕,东侧也没有杭甬高速噪声影响,这些都是其他竞品难以比拟的,在城东新城算是较为优质的选择。
总价500万-700万,总价相对可控,在城东新城还是具备一定竞争力的。后期加推户型的总价则从600万起步,预算有限需把握首开机会。
城东方向的改善自住客户可积极关注,投资则需要一段时间的培育,需等待城市价值整体继续向上突破。
-END-

文/阿寻 编辑/阿寻
2024-02-02 03:52:53
2024-02-02 03:50:48
2024-02-02 03:48:43
2024-02-02 03:46:38
2024-02-02 03:44:33
2024-02-02 03:42:28
2024-02-02 03:40:23
2024-02-02 03:38:19
2024-02-01 20:45:14
2024-02-01 20:42:59
2024-02-01 20:40:44
2024-02-01 20:38:29
2024-02-01 20:36:14
2024-02-01 20:33:59
2024-02-01 20:31:45
2024-02-01 20:29:30
2024-02-01 20:27:15
2024-02-01 20:25:00
2024-02-01 15:47:32
2024-02-01 09:14:34